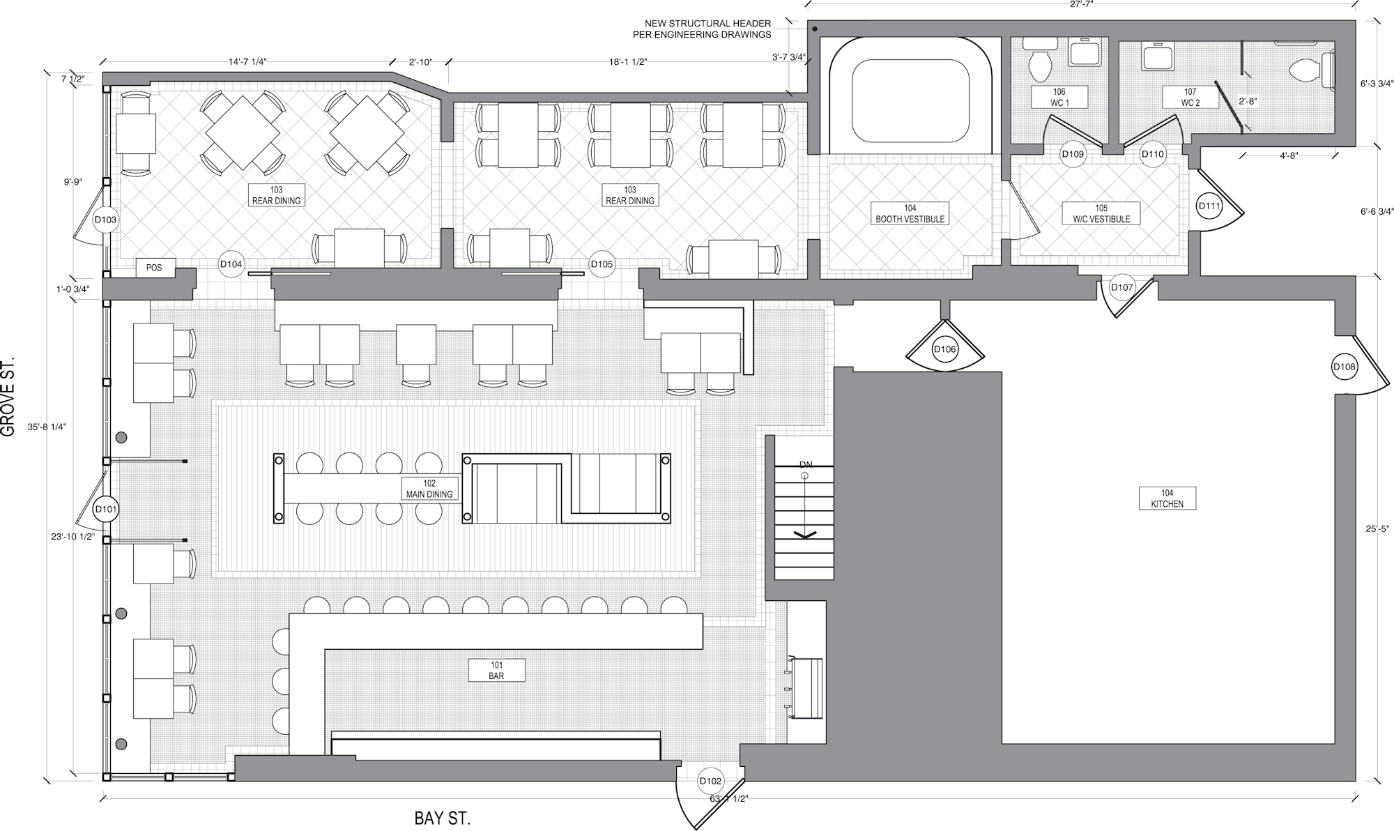
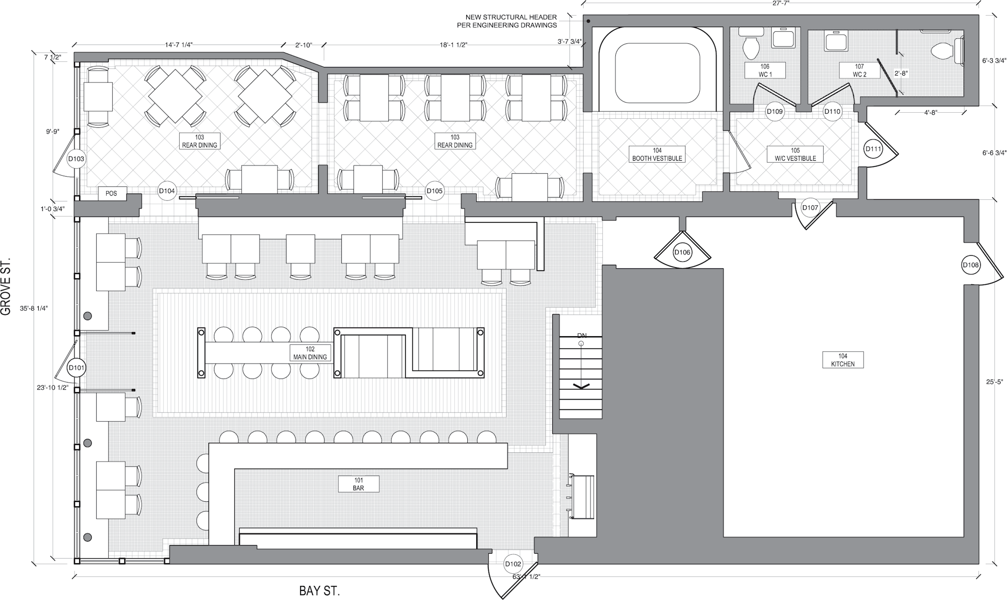
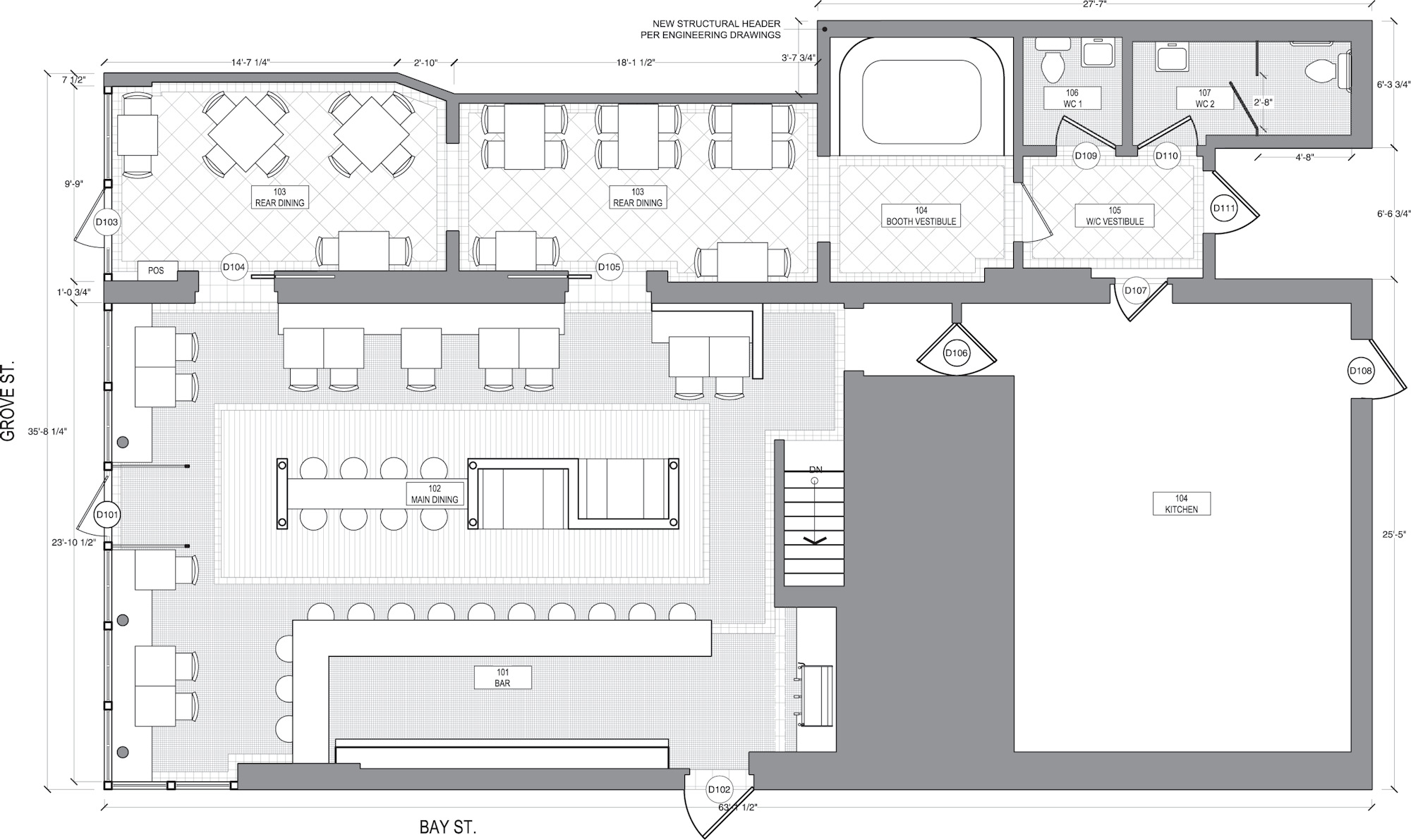
Creating a Neighborhood Spot
This rebuild of famed Cuban restaurant La Conguita is a Design-Build collaboration between several very accomplished players, including Interior Designer Kevin Greenberg, Rowhouse’s Eric Powers, and Graphic Designer Drew Heffron, in addition to many talented crafts-persons and culinary professionals.

Because we are Architects, Engineers, and Builders, we can contribute to a project from various perspectives. Our role here as Executive Architect was simple when compared to the herculean effort invested by the restaurant’s Owner, Matteusz Kopec, whose ambition, vision, and personality come through in all details ranging from light fixture selections to setting the cutlery at the dining table.


This rebuild of famed Cuban restaurant La Conguita is a Design-Build collaboration between several very accomplished players, including Interior Designer Kevin Greenberg, Rowhouse’s Eric Powers, and Graphic Designer Drew Heffron, in addition to many talented crafts-persons and culinary professionals.
Architecture