A Sustainable Space for a Visionary Brand
Brooklyn-based online retailer Uncommon Goods lives up to its name in all that it does. So when it came to their new Head office, they appointed Agencie to deliver a design that accentuates the brand’s quirky and unique culture. The space needed to incorporate a suitable work environment for the team as well as state-of-the-art shipping facilities. The location? The historic Brooklyn Army Terminal (BAT), built in 1918.
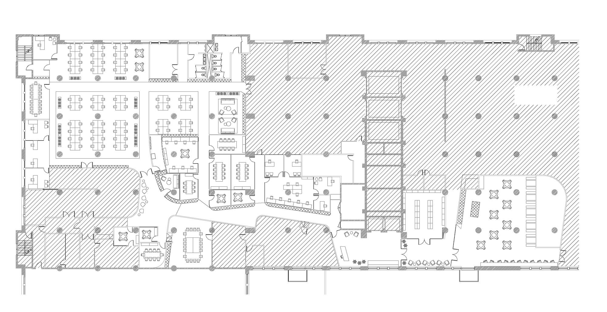
Our renovations ensured that the 20,000 sq ft of commercial space was spacious and filled with light. A variety of areas within the space create opportunities to spark conversations and for colleagues to interact, both of which drive productivity and creativity. Crucially, the space had to feel intimate to its core team of 20 whilst comfortably accommodating up to 180 extra staff during the holiday season.


Throughout WWII, the BAT served as the largest military supply base in the US. Its imposing concrete structure has been kept largely intact, honoring its past. Yet it has a modern, Brooklyn touch. Our shared commitment to sustainable development led to considerate decisions around the use of natural materials. The acoustic panels, for example, are constructed from sustainable plant fibers and wood. Different, yet purposeful. Offbeat, yet functional. Historical, yet contemporary. The building now lives and breathes this tech company’s culture and values.

