Design of Blast Resistant Facade System
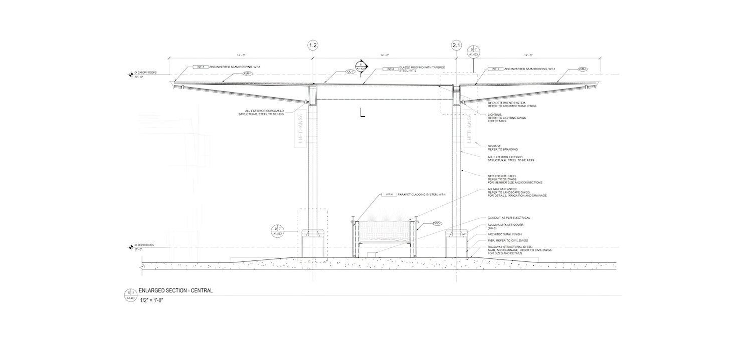
Agencie acted as an MWBE subconsultant and participated in the early design and engineering phase of a comprehensive new terminal at JFK Airport. Agencie’s scope included enclosure engineering, featuring expansive canopies at the airport's entrance. These overhead protections offer necessary shade and weather protection, in addition to aiding wayfinding for pedestrians entering and exiting the terminal.

The canopies are a fabric made of ETFE. ETFE is a lightweight alternative to glass that provides similar light transmission properties while being incredibly more flexible. In addition, the flexible nature of ETFE permitted a relaxation of deflection criteria, allowing movement that would not have been possible using glass canopies. It allowed the supporting steel sections to be smaller, saving materials and space. This more efficient use of materials reflects Agencie’s commitment to cost-effectiveness and sustainability.





The canopy cantilevers presented a problem: How do we achieve the required spans while keeping the build lightweight and cost-effective? Using tapered steel sections creates a more efficient structure compared to what standard units could achieve.


NEW YORK, NY